
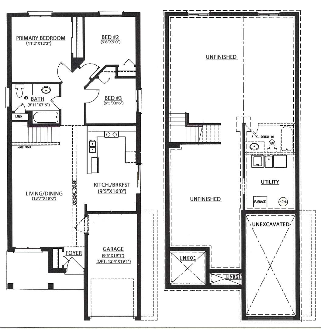
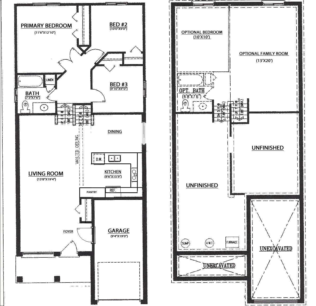
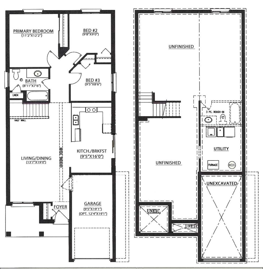
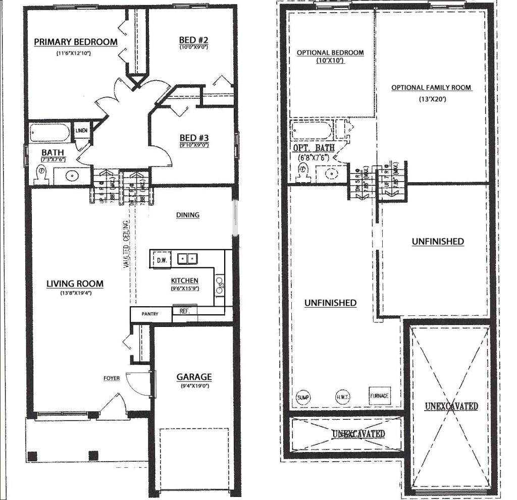
Welcome To Patzer Homes

CONTACT
Klaud Czeslawski Realtor®
For more info on these model homes and more!

Included Finishes & Features
**Upgrades are possible
-
Building permit and all associated fees
-
Development charges
-
Water, hydro and gas meter connections
-
Survey
-
Tarion warranty
-
Sanitary sewer, storm water drain and water hookups
-
Sump pump
-
All structural framing in accordance with O.B.C.
-
2″ x 6″ exterior walls with 7/16″ aspenite cladding
-
R-24 fiberglass batt insulation
-
Tyvek house wrap
-
R-60 blown in attic insulation
-
5/8″ tongue and groove aspenite flooring, glued, nailed screwed down
-
8 foot ceiling on main floor (unless otherwise noted)
-
Spray foam insulation in garage at heated areas
-
Engineered roof trusses with 7/16″ aspenite cladding
-
Basement insulated to O.B.C standard
-
All selections from builders’ samples
-
Exterior finishes based on selected plan and elevations
-
Clay or concrete brick selected at Ferrell Brick and Stone
-
Vinyl siding from Aluminum Associates
-
Stucco and Hardie board also available at additional expense
-
Maintenance free aluminum soffit, fascia and eavestrough
-
40 year shingles
-
Low E vinyl clad windows from Golden Windows
-
9″ concrete poured foundation with Platon drainage system
-
Poured concrete front porch, garage and basement floors
-
Precast concrete front steps
-
Cement parging to exposed concrete foundation above grade
-
All exterior doors and windows caulked
-
Asphalt driveway
-
Pressure treated stairs to backyard and garage to house
-
Galvanized window wells as required by grading
-
Precast stone sills at windows and doors where brick or stone is installed
-
Oversized basement windows
-
Garage doors non insulated – no windows
-
Builder supplied garage door openers
-
All selections from builders’ samples at Sacwal Flooring
-
Ceramic flooring in all wet areas, foyer, kitchen, bathrooms and laundry
-
Carpet in balance of home
-
11⁄2″ drywall walls and ceiling
-
Colonial paint grade mdf casing and baseboard
-
Series 800 painted interior doors, various options available
-
Orange peel textured ceilings throughout except bathrooms and laundry
-
Two coat interior paint – premium latex eggshell from Glidden
-
3 paint colours allowed, extra colours $100. each
-
Wire shelving in closets.
-
Brushed nickel lever hardware
-
Stairs to be carpeted treads with painted stringers
-
All railings to be paint grade poplar
-
Vanity mirrors and bathroom accessories selected by the builder
-
Custom cabinetry to be selected at Cardinal Kitchens based on drawings Cabinetry Allowance is $18,000.00
-
Mirolin acrylic tub and shower units
-
Chrome waste and overflows
-
Moen Chateau single lever taps for bathrooms
-
Moen Integra pullout faucet in kitchen
-
American Standard Evolution toilets
-
American Standard Colony China basins
-
Kindred stainless steel double sink in kitchen
-
Power pipe heat recovery drain
-
Exterior frost free faucet at rear of home and in garage
-
Lennox Air Ease hi efficiency hydro saving furnace
-
Lifebreath simplified HRV
-
Lennox Air Ease central air conditioner sized to home
-
Programmable thermostat
-
Rental Envirosense 5076 water heater or equivalent from Reliance
-
Dryer vented to exterior
-
100 amp service panel with breakers
-
Door chime
-
Kitchen exhaust fan selected by builder
-
Combination smoke and co detectors installed per code
-
Cat 6 wiring for communications in all bedrooms
-
Arc fault circuit interrupters
-
Weather proof exterior electrical outlets with GFI at all exterior doors
-
Exhaust fans in all bathrooms
-
White Decora switches and standard plugs
-
Fixture allowance of $2,000.00




















