
Welcome To Modern Manors Custom Homes
At Modern Manors, we turn your ideas into real homes—spaces that are smart, stylish, and built to last. Our team brings a fresh, transparent approach to homebuilding in Ontario. Whether you’re building your first home or your forever home, we guide you through every step with care and clarity.

CONTACT
Klaud Czeslawski Realtor®
For more info on these model homes and more!

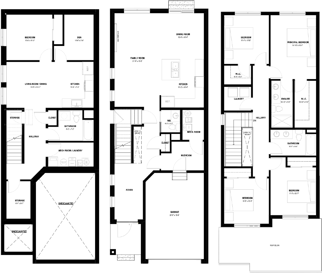
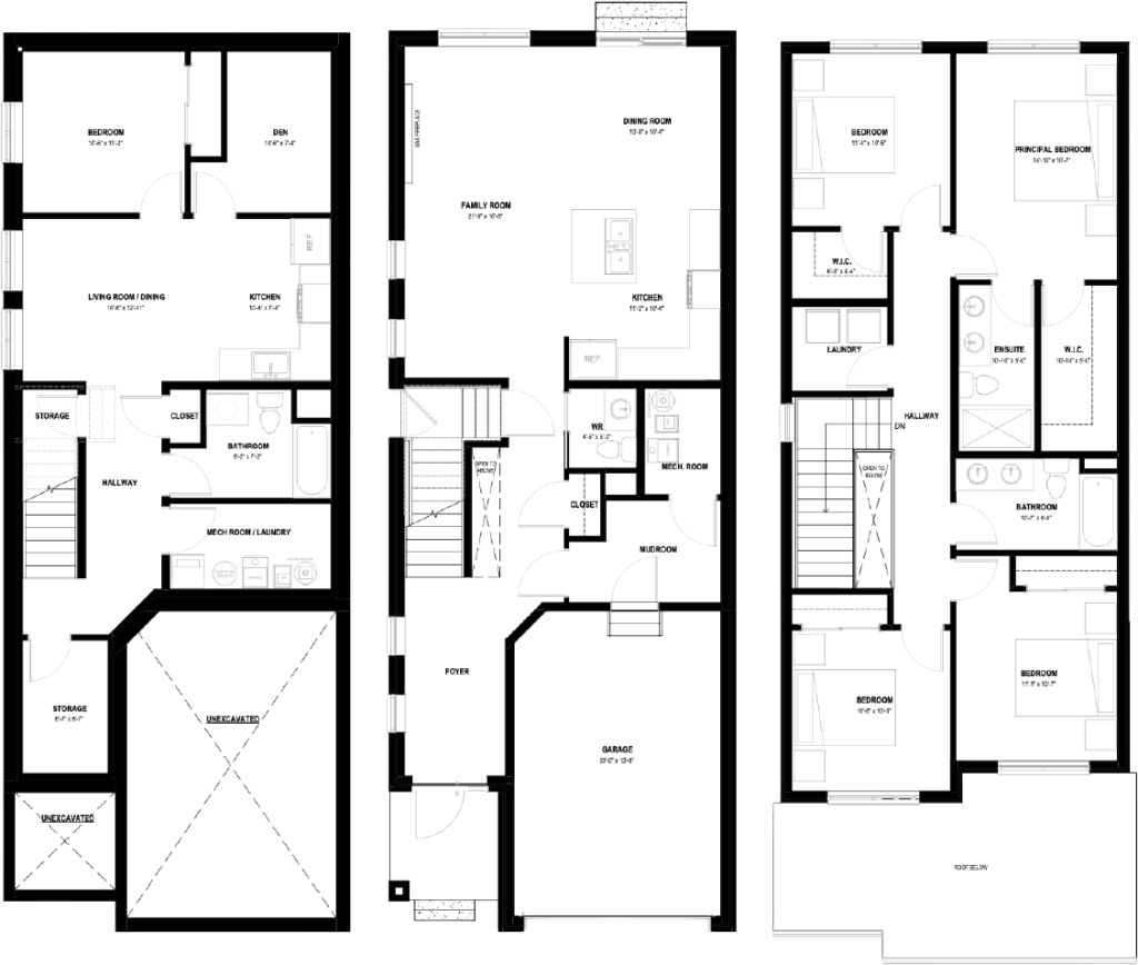
Included Finishes & Features
**Upgrades are possible.
- 9 ft. ceiling on the first floor, 8 ft. ceiling on the second floor
- Rounded or square drywall corners
- Oak stair and railing
- Oversized 5 1/4 in. baseboards and 3 1/2 in. casings
- California textured ceilings throughout, excluding bathrooms and small closets
- Three coats of quality paint on all walls, up to three colour choices
- Smooth touch spray finish on all trim and doors
- Swing doors for all rooms and closets
- Custom cabinetry in kitchen and all bathrooms
- A variety of cabinet styles and finishes
- Kitchen cabinetry includes soft-close doors and drawers
- Granite or quartz countertops with a modern single-lever faucet
- Tiled surround shower in main bathroom
- Tiled ceramic shower surround with custom-made glass in Master Ensuite
- Single-lever Moen faucets in all bathrooms
- Vanity with sink in powder room
- Water line for refrigerator
- $300 vanity mirror allowance
- Hardwood engineered flooring on main floor and 2nd floor high-traffic areas
- 12 in. x 24 in. or 24 in. x 24 in. tile in foyer, laundry, bathrooms and ensuite
- Generous lighting allowance
- 100-amp electrical service with breaker panel
- White Decora light switches and receptacles
- Builder-grade lights in all bedrooms
- Two exterior GFCI weatherproof outlets
- Hard-wired smoke detectors on each floor and in bedrooms
- Hard-wired carbon monoxide detectors where required
- 8 pot lights
- Easy-to-use programmable thermostat
- High-efficiency forced-air, direct-vent gas furnace
- Minimum R-22 in walls above grade, R-60 in attic space, and R-20 in basement walls
- Exhaust fans in all bathrooms, vented to exterior
- Energy Star low-E, argon-filled, vinyl-clad windows
- Healthy climate HRV (Heat Recovery Ventilator)
- High-efficiency gas tankless hot water heater (rental)
- Central AC
- Architecturally controlled elevations
- Garage drywalled and taped
- Foam insulation sprayed around windows and doors
- Windows and doors sealed with high-quality exterior caulking
- Upgraded space-living configuration of shelving in walk-in closets
- 2 x 6 extra-sturdy framing
- Double wall consisting of OSB and a 1/2 in. foam sheet
- Garage door opener with electrical outlet and low-voltage wire
- Major appliances include dishwasher, washer and dryer
- All brick main floor
- Siding / stucco in white on the second floor – no colour
- Poured concrete basement walls with waterproofing membrane
- Aluminum soffits, fascia, eaves, downspouts, window surrounds, bay surround and vents
- Two exterior water taps, one in garage
- Lot graded to city requirements; top-soiled and sodded all around
- Roll-up insulated garage doors
- All coloured windows
- Bituminous damp-proofing applied to exterior of below-grade walls
- Air-gap membrane applied to the exterior of below-grade foundation walls
- Foundation drains with filter cloth located at perimeter of foundation walls, connected to storm sewer and/or sump pit as applicable
- Sump pit constructed and installed in the basement when applicable. Location determined by regulatory authority
- 3 in. depth basement concrete floor
- 4 in. depth garage concrete floor
- Parged foundation walls








