
Welcome To Liersch Custom Homes
We’ll do it right the first time—on time and on budget—so you can enjoy your home for a lifetime.

CONTACT
Klaud Czeslawski Realtor®
For more info on these model homes and more!

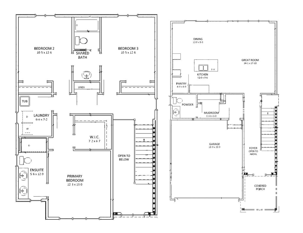
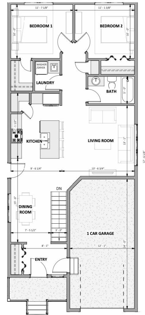
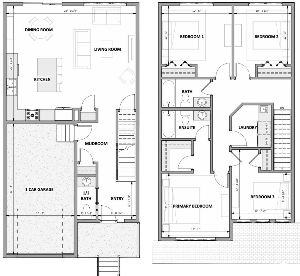
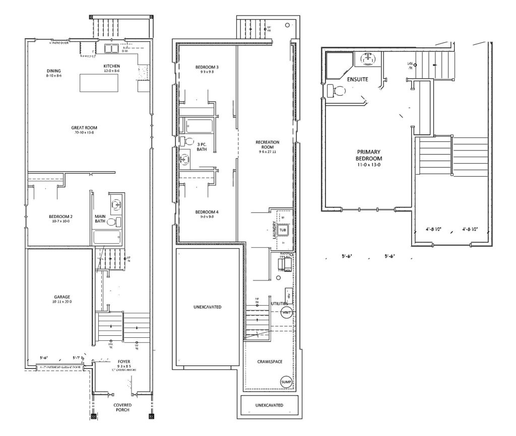
Included Finishes & Features
**Upgrades are possible
- Permits: Building permit fees and development charges are included.
- Utilities: Includes water, hydro, and gas meter connections.
- Survey: A full lot survey is provided for the property.
- Warranty: Tarion Warranty Registration Fees are included
- Driveway: Finished with Handy Paver 12″ x 12″ paving stones.
- Landscaping: Entire lot is finish-graded and sodded.
- Foundation: 8’10” height x 9″ thick poured concrete walls with 3″ concrete floor.
- Exterior Walls: 2” x 6” exterior wall construction with 7/16” aspenite cladding and Tyvek
house wrap. - Subfloors: 3⁄4” tongue and groove subfloors are glued, screwed, and nailed for
maximum stability. - Ceilings: 9′ main floor ceilings and 8′ second floor ceilings (per plan).
- Basement: Enhanced 9′ basement height to facilitate future finishing.
- Insulation: R22 fiberglass batt in exterior walls, R60 in the attic, R31 Sprayfoam for
living areas above garage
- HVAC: High-efficiency 2-stage furnace and central air conditioner.
- Ventilation:
○ Venmar duct-to-duct Heat Recovery Ventilator (HRV).
○ Bathroom exhaust fan in each bathroom, exhausted to exterior
○ Range hood exhaust vented to exterior
○ Laundry exhaust vented to exterior - Water Heater: Power Vented Water Heater (rented at purchaser’s expense, buy-out option available)
- Electrical: 200 AMP service panel with breakers.
○ Decora light switches, wall outlets
○ Includes up to 12 interior LED pot lights, 1 central light fixtures in all bedrooms, 1 vanity light in each bathroom
○ 2 exterior GFCI outlets and 3 exterior light fixtures
○ Hard-wired smoke detector and CO2 on all floors and smoke detector in eachbedroom. - Plumbing:
○ Toilets: American Standard Cadet Millenium (Comfort Height, Elongated)
○ Kitchen Faucet: Moen Kitchen Faucet ($300 Allowance)
○ Bathroom Faucet: Moen Bathroom Faucet ($200 Allowance / Fixture)
○ Bathtub and Shower Trim Kit: Moen ($300 Allowance / Kit)
○ Bathtub: Mirolin Sydney Acrylic Tub, 20” Height
○ Shower Base: MAAX Acrylic Base (upgrade to tile base or solid resin) - Technology: CAT 6 outlet in the living room and in each bedroom
- Cabinetry: All selections to be made from builders’ samples
○ $25,000 Cabinetry allowance and $5000 Countertop allowance - Drywall: 1⁄2” Drywall to walls and ceiling, moisture resistant tile backer to tiled shower and tub areas
- Trim: Modern MDF 3.5” casing and 5.5” baseboard.
- Doors & Hardware: Two-panel smooth interior doors with lever handles.
- Paint: Two coats of premium latex paint.
○ Walls: Eggshell, Up to 3 colours. Standard is Classic Gray OC-23
○ Trim & Door: Pearl or Semi-Gloss.
○ Ceiling: Flat, Low Sheen - Ceiling Texture: Knockdown texture throughout, except for bathrooms and laundry.
- Closet Shelving: 1 Row of wire shelves in all closets
- Shower & Bathtub Walls: Ceramic Tile
- Bathroom Finishes: Mirror and 3 piece accessory kit in all bathrooms
- Stairs: Stained Oak stairs with modern metal spindles.
- Hardwood: Selection from builder’s samples for main and second floor (per plan).
- Laminate or Vinyl: Basement floor (where applicable), basement subfloor upgrade available for additional warmth
- Tile: Ceramic flooring in foyer, bathrooms, and laundry room,
All selections to be made from builders’ samples
- Clay or concrete brick from builders’ samples
- Vinyl siding – vertical board and batten style on front elevation, horizontal on balance
- Aluminum soffit, fascia and eavestrough
- 25 year asphalt shingles
- Insulated garage doors
- Vinyl clad windows
- Insulated fibreglass stainable front door
- Poured concrete front porch and garage floor
- Caulking to all exterior windows and doors
- Pressure treated stairs to rear yard and from garage to house
- Galvanized window wells where required by lot grading
- Kitchen & Vanity Cabinets: $18,000
- Countertops: $5,000
- Lighting Fixtures: $2,500
- Plumbing Fixtures: $300 Kitchen, $200/ea Bath, $300/ea Shower/Tub
- Hardwood Flooring: $8.00 per square foot
- Ceramic Tile: $5.00 per square foot
- Carpet: $3.00 per square foot














